Modern New Build

Trinidad

  • Location

    Sunnynook

  • Project Type

    New Build

  • Project Timeline

    7 Months

  • Built for

    Family Living

A modern family home designed to make the most of every part of the section.

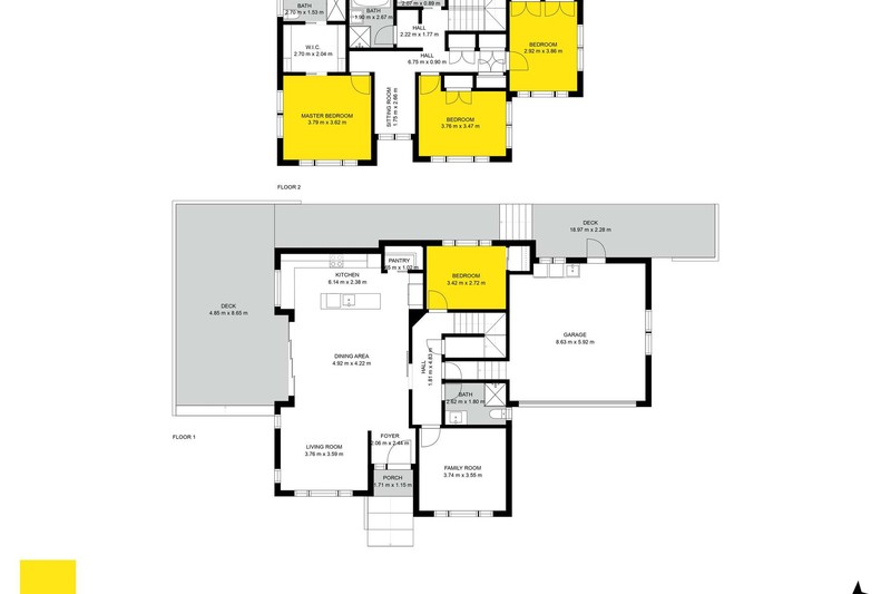
This five-bedroom home in Sunnynook was built with a growing family in mind, offering plenty of space for everyday living as well as room for extended family to stay. The layout was designed to be practical and flexible, making it easy to use across different stages of family life.

The home makes the most of the available space on the section, with a design that feels open without wasting any area. Living spaces are well connected, creating a natural flow through the home while still allowing for separation when needed.

On the exterior, the use of cedar adds warmth and character, giving the home a more natural feel while still keeping a clean, modern look. The end result is a home that feels both functional and comfortable, built to suit how families actually live.

Like what you see?

Get in touch with us.

We currently service the Auckland areas of North Shore, Northwest, Silverdale, Hibiscus Coast and Lower Rodney to Warkworth.